DIY惠威F5 / SD1.1A的中央声道扬声器
该中心创建声道扬声器,以配合和协助1.618的Hi-Vi的3路塔式扬声器在环绕声再现。主要重点是1.618塔相匹配的上腔。然而,箱体被选择,以帮助在延长的响应。相同的交叉点被用作塔扬声器。在一个侧面说明,它是专门建造的,完全适合我的电视柜。
基本信息:
-
4 - 惠威F5芳纶中低频喇叭
-
- 惠威SD1.1A球顶高音
-
全屏蔽
-
170瓦RMS @ 4欧
-
第二/第三阶分频器频率为4kHz
-
频率响应:60Hz - 20kHz的
-
外形尺寸:43“×7”×14“
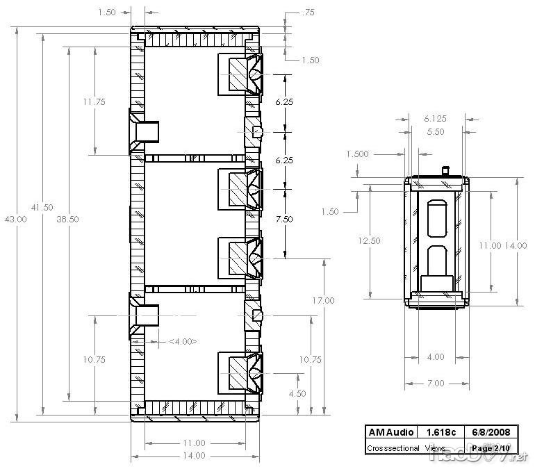
的中心通道的外壳设计为如下所示。

图1:惠威家庭影院中置声道音箱外壳图
中央声道扬声器和建模的频率响应的交叉设计为如下所示。

图2:惠威家庭影院中置声道音箱分频器电路图
2路交叉网络
的低通(LP)滤波器:二阶巴特沃斯,角频率:4000 Hz的
高通(HP)过滤器:二阶巴特沃斯,角频率:4000赫兹
C1 = 3.3的用友,聚丙烯,0.00764欧姆
C2 = 8.2μF,聚丙烯,0.00548欧姆
C3 = 15μF,聚丙烯,0.0048欧姆L1 = 0.27 mH的,空芯(#18),0.215欧姆
L2 = 0.13 mH的,空芯(#18),0.16欧姆低音单元阻抗均衡电路 REQ = 2.4欧姆CE = 25 uF的L-键盘电路:1.32分贝印尼盾= 0.51欧姆RP2 = 5.1欧姆

图3:仿照频率响应惠威中心声道扬声器外壳
DIY中央声道扬声器建设
的中心chanenel外壳的结构示于下面的照片。

照片1:中置声道箱总成

照片二:MDF中置声道准备绘画
的组装的交叉和快速的声音检查。

照片三:组装后的HiVi F5 / SD1.1A交叉

照片4:声音检查的频电路
成品中央声道柜,然后使用几种油基环氧涂料的涂层,然后完成红橡木装饰并经过涂漆。

照片5:惠威F5 / SD1.1A中心的声道扬声器
DIY中央声道扬声器测量
为家庭影院中央声道的测得的房间响应如下所示。

图4:惠威F5 / SD1.1A的中心通道测量房间响应
完美!我的家庭影院前现在是无缝的。匹配非常好,在塔的中心。对话是非常清楚的,它具有优良的温暖质量。只有时间会告诉我们,当我看到越来越多的电影。到目前为止,黑鹰坠落了出色的!而我得到的一些高清频道,产生5.1,我也没有怨言以外还需要有更多的渠道!!
DIY中央声道扬声器 - 型号列表和成本
用于这个项目和相应的成本的部分列表提供在下面的表中。这个项目的所有的部分都可以从零件快速 。
|
PARTSEXPRESS PART# |
说明 |
数量 |
价格 |
TOTAL |
260-317
255-216
255-204
100-088
100-074
091-624
091-600
095-280
095-286
004-.51
004-2.4
004-5.1
027-432
027-438
027-426
027-420
297-416
297-435
080-722
MATRIX
2Flare
OX6PAN3/4
OX6OVAL3/4 |
1磅Acousta的东西
詹特伦18AWG 0.27 mH的电感
詹特伦0.13 mH的18AWG电感
16AWG灰线百英尺
16AWG红色线百英尺
顿BPP-Sn的缎子镶边发表
顿SBPP硅接线柱板
1/4“(16-14)女- 50个
.110“ (16-14)惠威SD1.1A 女- 50个
代顿10W电阻0.51欧姆
顿10W电阻2.4欧姆
顿10W电阻5.1欧姆
顿15UF聚丙烯盖
顿的25uF聚丙烯盖。
代顿的8.2uF Polyproplylene盖。
顿3.3UF聚丙烯盖。
1“球顶高音
惠威F5 5“中低频
NTE热收缩-间协调- :158pc
矩阵电路板(madisound.com)
2,喇叭端口(madisound.com)
第6盘头3/4“ -座牛年蜡(madisound.com )
#6椭圆形的头3/4“ -座牛年蜡(madisound.com) |
2
1
1
1
1
1
1
1
1
1
1
1
1
1
1
1
2
4
1
1
2
12
24 |
$9.75
$5.18
$3.27
$14.70
$14.70
$15.96
$8.40
$3.98
$4.48
$1.25
$1.25
$1.25
$5.23
$6.58
$3.37
$1.69
$12.60
$35.64
$10.00
$7.00
$8.80
$0.03
$0.05 |
$19.50
$5.29
$3.27
$14.70
$14.70
$15.96
$8.40
$3.98
$4.48
$1.25
$1.25
$1.25
$5.23
$6.58
$3.37
$1.69
$25.20
$142.56
$10.00
$7.00
$17.60
$0.36
$1.20 |
(责任编辑:admin) |