最好的电子音响科技diy制作网站

haoDIY_音响电子电脑科技DIY小制作发明

当前位置: 主页 > 音响DIY > 音箱DIY > 分频音箱 >

惠威D6.8书架箱完成!重新设计分频器。附上全部制作图纸资料

时间:2012-12-13 15:29来源:bbs.hifidiy.net 作者:yoyompk 点击:
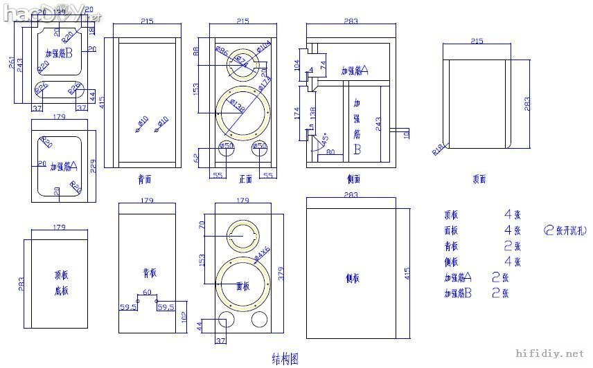
下载 (70.19 KB) 2012-9-26 00:44 下载 (19.95 KB) 2012-9-26 00:44 下载 (21.32 KB) 2012-9-26 00:44 下载 (105.68 KB) 2012-9-26 00:44 下载 (115.91 KB) 2012-9-26 00:44 下载 (65.54 KB) 2012-9-26 00:44 经过一段漫长的DIY时光,我的处女箱终于完成。从
惠威D6.8书架箱完成!重新设计分频器。附上全部制作图纸资料 惠威D6.8书架箱完成!重新设计分频器。附上全部制作图纸资料 惠威D6.8书架箱完成!重新设计分频器。附上全部制作图纸资料 惠威D6.8书架箱完成!重新设计分频器。附上全部制作图纸资料 惠威D6.8书架箱完成!重新设计分频器。附上全部制作图纸资料 惠威D6.8书架箱完成!重新设计分频器。附上全部制作图纸资料

经过一段漫长的DIY时光,我的处女箱终于完成。从参考D友的方案,到网络寻成品空箱不遇到自己画图开板成箱,贴木皮打木蜡,再到上箱测试单元,调整倒相管,最后模拟制作分频。。。。。。。。体会到了DIY的艰辛与乐趣。上一贴求大大们指导分频,得到了不少朋友的宝贵意见,今天完成了新设计分频的制作上箱。具体听感因人而异,本人非烧友,只求能舒舒服服的听听歌,目前感觉良好惠威D6.8书架箱完成!重新设计分频器。附上全部制作图纸资料 。整理一下资料附上图片。制作过程没有拍照。。。。。。
分频里单元的符号选错了惠威D6.8书架箱完成!重新设计分频器。附上全部制作图纸资料
惠威D6.8书架箱完成!重新设计分频器。附上全部制作图纸资料

惠威D6.8书架箱完成!重新设计分频器。附上全部制作图纸资料
织梦二维码生成器
顶一下
(0)
0%
踩一下
(2)
100%
------分隔线----------------------------
发表评论
请自觉遵守互联网相关的政策法规,严禁发布色情、暴力、反动的言论。
评价:
表情:
用户名: 验证码:点击我更换图片
栏目列表
推荐内容