|
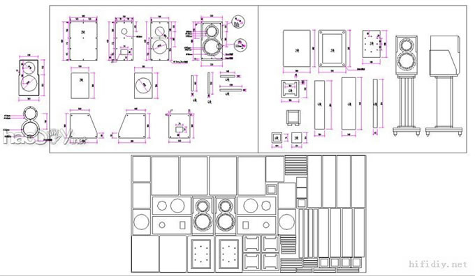
单元已经订了半个月了,从资料参考到图纸设计也花了不少时间,上周五终于开始动工了.闲话不多说,开始上图吧. 还是先发效果图吧,之前已发过.沉得太深,找不到了,重新发一下吧. ![]() 不过最终做的时候和效果图还是不一样,做了一些修改. ![]() 发一下尺寸图和排版图.一对音箱加一对脚架基本上一张大板(装饰侧板另用). ![]() 下面就是制作过程了.考虑到手头上电动工具有限,手艺也不过关. 所以开板还用去找了雕刻机
用修边机修一下一些有误差的地方,在这里给大家说一下.雕刻机其实也不是很精确,多少有些误差,这也和雕刻的操作人员有些关系,如果板子压得不稳开出来的板子就会出现"扯角"的问题,那就不好处理了,有条件还是在工木工厂用台锯开板标准些. ![]() 操作过程…… 没有用F钳,因为我业余时间不多,也不好在家里作加工。所以必需在短时间内组装完成,所以采用 白乳胶+自攻螺丝 的组装方式。自攻螺丝用的是不锈钢的。 里面的内角有些地方用了加强筋。 这样的方式粘接密封性一定不太理想,但省时间嘛…… ![]()
|






























