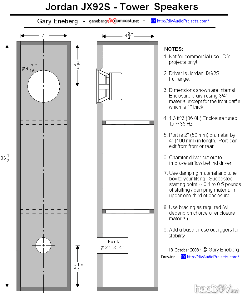
JX92S塔议长项目简介 - 乔丹做自己动手(DIY)扬声器项目的约旦JX92S全过程驱动程序是用来做塔扬声器。外壳在一个大的扬声器箱通风(1.3英尺)。本扬声器系统非常适合中大型房中等功率放大(10W以上)。JX92S驱动程序具有良好的功率处理能力(50W RMS)和一个大X 最大的只有9毫米,因此可以开发SPL适中。约旦JX92S是一个非常视为全频驱动程序,这是众所周知的平滑的频率响应,它能够提供比任何类似大小的全频驱动器低音更。 外壳设计 - 乔丹JX92S通风扬声器我们的目标是获得一个良好的金额低端响应,从这个塔扬声器。图1示出了计算出的频率响应为一个低音反射柜(无阻尼材料)在一个130英尺3 JX92S 并调谐到〜35赫兹。的频率响应,计算使用WinISD。计算出的-3dB点大约是30赫兹。
请参阅约旦JX92S全过程的驱动程序页面,测量和工厂的的蒂勒小参数。在模型中的频率响应,可以看出T / S差异不使多的频率响应中的差异。 下面在图2中示出该扬声器的外壳设计项目。请参阅建设详细信息,照片和说明。 围护施工 - 乔丹JX92S扬声器外壳使用3/4“波罗的海桦木胶合板,除了前障板的1/2”胶合板层压在一起,它由两部分组成。内件柜开幕的前障板紧密配合。的挡板的外件切成大于机柜的外部尺寸,并齐平安修剪尺寸的挡板一旦被粘到机柜的其余部分。 可对端口的调整后,他们需要的端口。该端口通过切割的孔中的内片的1/2“胶合板是外径的PVC端口可拆卸一旦两个挡板片粘在一起的,外面的挡板孔被切断与冲洗修剪位骑的内部的端口。
最后一个完成所有这些核桃的枫木贴面的光泽度桐油。照片3和4示出成品的扬声器。我也做了一些支腿为尖峰。,他们会给否则毛尖的扬声器一定的稳定性。
项目成本 - 乔丹JX92S扬声器
|































