最好的电子音响科技diy制作网站

haoDIY_音响电子电脑科技DIY小制作发明

当前位置: 主页 > 音响DIY > 音箱DIY > 分频音箱 >

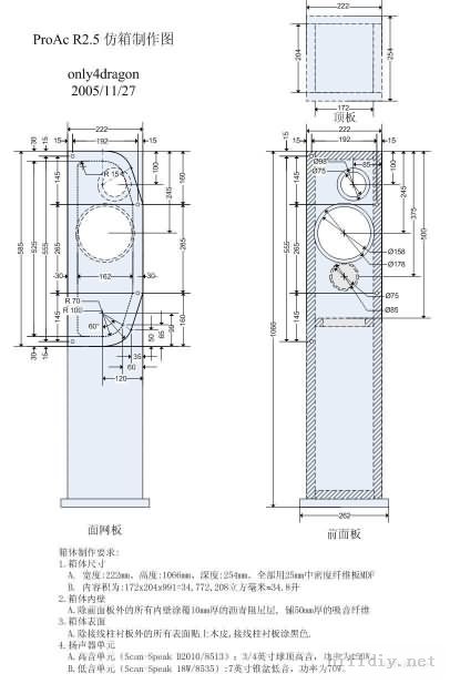
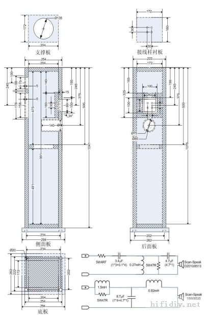
SCAN 8545 +SCAN 9300 仿制 “贵族2.5”音箱

时间:2012-12-07 17:47来源:bbs.hifidiy.net 作者:superxo 点击:
重金购买了scan 8545 和scan 9300 准备仿贵族2.5做个高档音箱 下载 (36.2 KB) 2007-7-12 17:15 下载 (36.01 KB) 2007-7-12 17:15 到深圳龙华坚威那定做了一对空箱 音箱是参考本论坛 仿制名箱及成功DIY作品资料征集贴 特别定做的,用榉木定做 下载 (40.36 KB)
重金购买了scan 8545 和scan 9300
准备仿贵族2.5做个高档音箱
SCAN 8545 +SCAN 9300 仿制 “贵族2.5”音箱

SCAN 8545 +SCAN 9300 仿制 “贵族2.5”音箱

到深圳龙华坚威那定做了一对空箱
音箱是参考本论坛 仿制名箱及成功DIY作品资料征集贴特别定做的,用榉木定做

SCAN 8545 +SCAN 9300 仿制 “贵族2.5”音箱

SCAN 8545 +SCAN 9300 仿制 “贵族2.5”音箱

SCAN 8545 +SCAN 9300 仿制 “贵族2.5”音箱

SCAN 8545 +SCAN 9300 仿制 “贵族2.5”音箱

SCAN 8545 +SCAN 9300 仿制 “贵族2.5”音箱

SCAN 8545 +SCAN 9300 仿制 “贵族2.5”音箱

分频器没有采用原设计,准备自己设计,搭棚焊,耳朵收货!!

一、先把低音的补偿网络做好
经测试SCAN 8545的电感为:0.363 MH  ,标称阻抗为8,直流电阻5.6 (责任编辑:admin)
织梦二维码生成器
顶一下
(3)
37.5%
踩一下
(5)
62.5%
------分隔线----------------------------
发表评论
请自觉遵守互联网相关的政策法规,严禁发布色情、暴力、反动的言论。
评价:
表情:
用户名: 验证码:点击我更换图片
栏目列表
推荐内容