| 既然如此,何不来和折中,关键的发声部位用钢琴响板,比如前面装喇叭的面板和后面露在外面的地方全用钢琴响板,而其他部位(主要是号角内部的过道)则用密度和硬度更好的桦木夹板。恩,应该是这个方案比较合理了。先这么定吧(再此再次感谢DBH兄)
 
 
 板材的选择虽然有了基本的方案,但因为还有机会亲自听听原装的GRF 所以,这个也只能是个初步的方案,一切还是得现场亲自听过和看够原装箱后在最终确定。
 原装箱在一位朋友家里,用麦景图275推,线财则是超时空顶级的喇叭线和信号线,这样的组合应该算比较到位了。
 声音表现不多说了,播放人声、古典音乐绝对是无可挑剔,让久久人不忍离去。如果非要鸡蛋里挑骨头的话,一个是对于听惯300B的人来说,MC275的高频略微显得保守了些,不过这应该不是GRF+银15之过,另一点则是由于听音空间还是小了些,所以低频的清晰度跟也略显不够。这点就不好分析到底是喇叭问题还是空间问题了,根据陈英光的说法,GRF的低频跟现代箱或者是美国箱子比,确实要慢一些,但即使如此,如果换成大空间,我想出来的低频清晰度应该可以满足我的要求了(本人不喜欢听爵士和流行音乐)。
 虽然舍不得停下来,但接下来还有最重要的任务:研究原装箱的板材运用,因此只能以后再找机会细细品尝原奘GRF的美声了。首先是是上下面板的材料,出乎我意料之外,并不是美松木,而是一种非常硬,看起来更像原木的板材,敲击所发出的声音也特别硬,谐振频率偏高,残响也很短。
 第二点,无论是后背板还是箱体内部号角过道用板(所能看得到的),并不是那种很白很软的云杉板,而是一种颜色有点偏红硬度也比较高的夹板,敲击听一下声音,从谐振频率来看,跟钢琴响板比较接近,稍微偏高一些,但不是钢琴响板那种很松很响的声音,而是一种松中带脆的声音。至于是什么木材我就无从判别了,毕竟不是这方面的专家,能记住木板的声音特点就行。
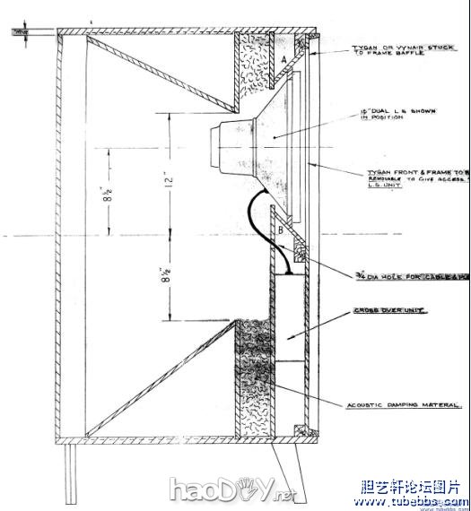
 第三点,除了上下板看起来象实木外,其他板都是12MM的五夹板.
 第四点,箱子结构上,上下面板确实是先挖槽,然后其他竖板直插安装的;现代有个老外仿GRF也是这么做的,但不知道原奘是不是这样,现在既然已经证实了,就可以放心的去做。
 
 
 http://www.users.bigpond.com/kfleming/tannoygrfhorn.htm
 这个是老外仿GRF的一个实例,上面除了他制作的图片外,还有设计图纸
 
 
 分析过原装箱板材后,反而觉得更迷茫,还是先回海口再说了。
 回家后别的事情一折腾,一周时间就过去了,如果要从外地买板,路上运输时间不短,回来恐怕也没时间做了。那只能再次折中,先在本地找到比较接近的木板做一对出来,当一把小白鼠,如果好,下一步再优选一下更好的板材料。于是在海口各个卖夹板的地方转了两天,首先发现18MM印尼皇冠板非常硬,密度也高,敲击的谐振比较接近原装箱顶板,以前家里装修的时候曾经买过皇冠板知道它质量过硬,既然声音接近,那这个就可以先定下来了。其他竖的板要求都是12MM厚的5夹板,谐振声音既要松也要脆,本来是想找美松板或者欧松板,可惜海口这个小地方没得卖,而印尼板质量虽然可以,但是只有三层夹板,而且密度太高,谐振声音也完全不一样。倒是有一种国产12MM五夹板听起来声音非常接近原装箱的的板材,也只好定它了。
 
 
 接下就是设计图纸的事了。原来以为这个应该没什么问题,可没想到最后问题最大,拖的时间最长的竟然是图纸的问题。
 
 
	设计图纸立面.jpg (94.76 KB) 
	  
	 
 
 
	设计图纸平面.jpg (147.1 KB) 
	  
	 
	设计图纸打印.jpg (121.84 KB) 
	  
	 
	设计图纸中文.jpg (254.3 KB) 
	  
	 
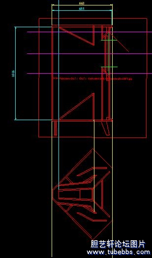
 从网络上只能找到以上四张图纸,回来仔细核对后,发现都有问题,头两张平面和立面图纸明显就是扫描出来的,但并没有扫描齐全,不过最主要的是它所标的尺寸根本不齐全,最少一般以上的板子没标注尺寸。第三张是前面提到的老外所做的,上面写着按照300DIP打印出来就等同于实物大小,不过我把它放到CAD里一看,两边根本不对称,所以根据它肯定也做不出箱子来,或者说,最少有喊大误差。第四张是国内书籍上的尺寸,把英寸换算成了毫米,而且有尺寸标注的位置比英文的多,但可惜的是有很多地方明显是错的。
 这回麻烦大了
 
 GRF除了顶低板是18MM外,其他的全是12MM ,这个已经完全确定了.
 
 箱子的每一个位置尺寸都必须弄清楚才能开工,最后采取了两个策略:1,能根据已知尺寸推导出来的则先推算出来,不能的,用CAD在原装图纸上进行测量。为此花费了一周多的时间,光是发现那几张图纸的错误前后就浪费了好几天。不过这些工作都不是我自己干的,CAD我不熟,还得求人帮忙。还好到临开工前才把所有的尺寸落实清楚。一周多时间的劳动成果。
 
 
 
	CAD图1.jpg (84.24 KB) 
	  
	 
	CAD图2.jpg (96.28 KB) 
	  
	 
	CAD图3.jpg (113.28 KB) 
	  
	 
	CAD图4.jpg (98.88 KB) 
	  
	 
	CAD图5.jpg (68.38 KB) 
	  
	 
 
 图纸好了,剩下就是加工的问题了。加工不外乎五个环节:
 1,顶底板的挖槽和切割;
 2,其他竖板的裁割;
 3,竖板不同角度的洗边;
 4,组装
 5,贴木皮和上油漆
 其中成败的关键在前三个环节,还好之前都已经调查清楚。挖槽比较好办,直接找数控雕刻机加工,数控加工的精度毋庸质疑,可以达到0.1MM的误差,手工永远都不可能达到。裁板前年做扩散板的时候找到一家做橱柜的工厂,那有高精度开料锯,精度在1MM之内,也可以接受了。麻烦的是不同角度的洗边,海口还真不好找,最后找到一家专门做仿古家具的厂那有可调角度的刨床,既然是做仿古家具,工艺不会差到哪里去,干脆连组装和贴木皮也一起在那做得了。
 
 
 雕刻机挖槽在所有工序中最省心省力。把板放到车床上固定好后,一切全交给电脑控制,等四块板全加工完成后,回去几张好点的砂纸把一些毛刺一蹭掉,看起来简直让人爱不释手。看来科技发达了DIY也省事,要是找木匠手工凿,能达到这个效果的十分之一就不错了。不过也多亏柱子提醒,特意买了把进口的雕刻刀,要不出来的切口恐怕没那么整齐了
 
 
 
	雕刻挖槽1.jpg (172.49 KB) 
	  
	 
	雕刻挖槽2.jpg (144.79 KB) 
	  
	 
 裁板相对也比较简单一些,因为绝大部分板的长度都是一样的,先横着裁出长度一样的大板,然后竖着再裁出每一个尺寸的板件,至于那些不太规则的,则只能先粗略裁出来,最后组装的时候再让木工弄了。
 
 角度可调的刨边机,在海口找了好几家才找到这里有,还是让工厂里最好的师傅亲自操刀.
 
	刨床2.jpg (156.29 KB) 
	  
	 
	洗完边的板.jpg (121.33 KB) 
	  
	 
 组装起来没想到也有很多学问,如果不是师傅经验丰富,让我们自己来估计不一定能装得下,顶底板是数控挖的槽,误差不会超过0.5MM,如果不是木板有一定的弹性,否则,只要任何一块木板误差超过0.5MM都装不进去.不过既然最后都顺利安装完毕,从另一个方面也说明这次加工的精度完全合格了.
 
	安装1.jpg (195.6 KB) 
	  
	 
	半成品1.jpg (132.48 KB) 
	  
	 
	柱子.jpg (135.58 KB) 
	  
	 
	半成品2.jpg (170.59 KB) 
	  
	 
 安装那几天,虽然是说找师傅加工,不过图纸他们一点都看不不懂,也懒得看,每一步都得让我告诉他怎么做,所以那几天几乎是天天准时到厂里上班。不过这样也好,每一个环节自己可以亲自监控。一些比较细,可做可不做的活,因为是自己的东西,只得自己亲自动手了,比如扳洗完边后都用砂纸把边上的毛刺打磨光滑,安装后,有缝的地方全用木胶粉补上,做到半点不漏气,而声音通道上的一些加强板,则全部把头尾打磨声尖角,减少声音的阻力。
 那几天,柱子,老郑,吴老师也是天天到场,
 
	上木胶粉.jpg (101.59 KB) 
	  
	 
 转眼假期马上就用完了,所以后面的底部围裙,贴木皮,上油漆,都来不及做了,这个样子也可以开声,反正我做这对箱子当炮灰的成分比较大,所以先听听声音再说。箱子基本完工后就直接拉回家,
 到家后再加上吃晚饭,已经快一点钟,打电话给老郑,平时比较早睡的他竟然马上就过来了。大家七手八脚的赶紧把喇叭装起再说,安装起来还真得三个人才能装,一不小心把喇叭纸盆捅坏了就一切抓瞎了。
 
 [ 本帖最后由 luss 于 2008-11-13 14:21 编辑 ]
 
	成品1.jpg (134.64 KB) 
	  
	 
	安装喇叭.jpg (145.68 KB) 
	  
	 
 “按耐不住兴奋”我们几个人分别来个合影留念
 
	完工留念1.jpg (222.85 KB) 
	  
	 
	完工留念2.jpg (165.5 KB) 
	  
	 跟随我10年的监听15+ST200也拍个照留念吧,希望是它以后能真的退休了。
 
	监听15留念.jpg (211.43 KB) 
	  
	 
 最想知道的还是出来的声音到底如何,满怀期待的心情,放下了LP唱针。听了一分钟我知道箱子成功了。除了低频大动态时候低频有点发混外,其他都非常平衡,声音离箱感很好。之前柱子说:新做的箱子,因为胶水没干,声音肯定有点闷,不闷反而不正常。所以低频有点混应该是正常现象,毕竟要等白乳胶干最少得一天以上,现在不过才几个小时。而之前我最担心的两点:声音发闷而不离箱,或者是因为不平衡而发死发干,这些都没出现。
 于是连着放了好几张经典的LP 。与原来的SYSTEM 15+ ST200比,在中高频上,银天朗就是银天朗,根本就不是粉磁的SYSTEM 15所能比的,即使再加ST200超高也枉然。而低频的气势与下潜也明显要比SYSTEM 15,甚至是我听过的绝大多数喇叭要好得多。当大提琴群奏的声音起来后,明显比以前能听到更多的信息。
 就一个字“爽”
 
 隔了一天,估计胶水应该干得差不多了,于是招呼大家一起过来一起鉴赏.不过为搬功放,有几个下午四点多就过来了。功放还是JADIS 的 JA30和胆唱放 CJ的EV-1。多带EV-1主要目的还是想看看我自己做的那套唱放跟它比到底如何。
    
 
 
	试听会-器材1.jpg (222.26 KB) 
	  
	 
	JA30.jpg (222.34 KB) 
	  
	 
	300B.jpg (224.87 KB) 
	  
	 
	DIY唱放.jpg (106.37 KB) 
	  
	 
 惯例,有重大活动都得合影留念一番
 
	合影留念.jpg (220.89 KB) 
	  
	 
 还是说说声音,依然还是用我的300B推。第一天刚做完那次,低频确实有点发混,而且中频似乎还有点雾汽的感觉,这个应该就是胶水没干的缘故。隔了三十多个小时后,首先是中频的雾气没了,低频尽管还有点混,但轻微了很多。后来上JA30,低频明显边扎实很多。这个低频基本可以赶上原来SYSTEM 的控制力了,但是下潜和气势要大得多。因此原来比较担心的低频发混问题,经过JA30的推动,看起来应该是可以过关了。后来,再把箱子底下那几块比重超过一的荔枝木换成避震钉后,低频的控制力和分析力改变更大,更是让我惊喜不已。
 
	避震钉.jpg (61.1 KB) 
	  
	 
 
 其实对于这个箱子的吸音棉的使用上,我一开始就觉得对于背负号角箱子,吸音棉的作用远没有倒相箱那么大,后来四友兄说到见过两对原装箱,一对有吸音棉,另一对却没有,就更说明在这个位置上吸音棉的作用并不是关键性的,不过是个微调而已。所以还是按照TANNOY 的传统,用上他家常用的长纤维自然棉。
 个人觉得做任何东西首先先有个思路,先找出事情的难点与重点,然后再考虑解决的办法或者是该做哪些试验。这对GRF 的仿造,经过多方面的资料分析后,觉得重点无非在三个方面:图纸的准确性,加工的精度,材料的应用。
 图纸的准确性,通过搜集到的多张图的参照对比分析后,这关基本已经过了,而加工精度,因为里面有两个很重要的环节上是用到了数控机床加工,所以这个也不是难点。难的其实就是在材料的选择上,开始选GRF 首先考虑的就是避开吸音材这个大关,另外由于银15自带分频器,所以分频也不用考虑,最大的问题其实是在板材的选择上。
 这个方面,原厂资料找不到相关的说明,而对于做音箱选用什么样的材料最好,音响界从来也没有什么铁的定律。有的人不希望箱体发声,因此选择更厚的密度板,甚至是金属等非常硬的材料,但是英国以及早期英美古董箱多少都利用了箱体发声,而且现在很多人更愿意听这种稍带点箱声的古典味道。
 如果能确定原厂用的是什么板材,而且能找到的话,我直接用它就是了。我没那么大的野心,能达到原厂9成水平我就很满足了,从不指望超过它。但是目前根本不知道原来用的是什么板,因此,只能通过观察,敲击原装箱以及能选择的板材,然后再做出决定,但是这样做的盲目性还是非常大,所以如果有可能,还是得选几样不同板做不同方案的比较,最后才能得出比较理想的效果。
 目前这对实验箱自我感觉有8成原装箱的水平以上,不过心里还是觉得不太够。还有一些其他方案必须得做过试验后才能知道结果,所以有可能的话还会再做一到两对。
 (责任编辑:admin)
 |